Jukić i Prlić arhitektonski ured d.o.o.

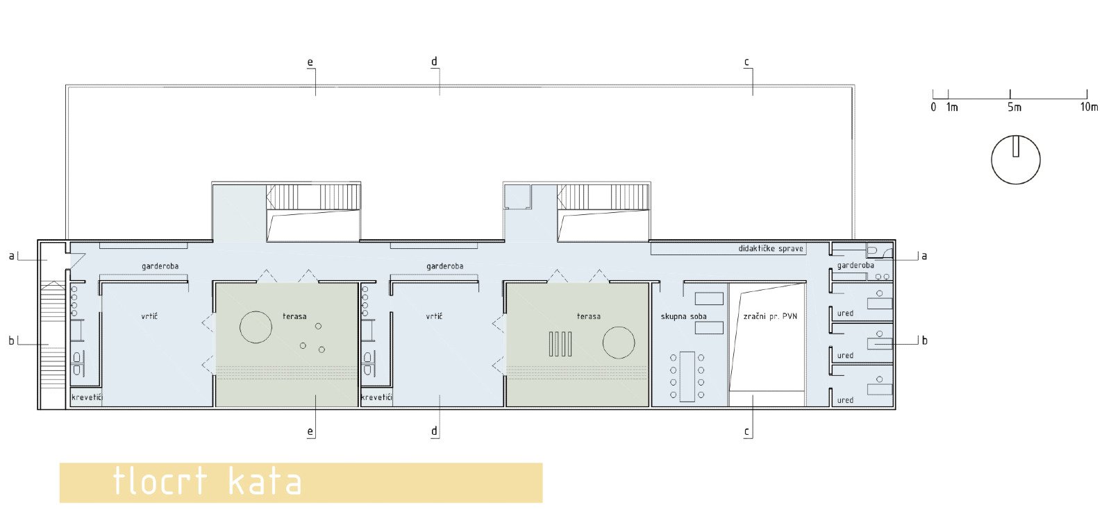
Projekt - Dječji vrtić Zvončić

Dječji vrtić Zvončić

Detalji projekta

Mattis ante aliquet facilisi volutpat habitasse sodales posuere. Efficitur aliquet tempus purus; parturient dolor scelerisque purus. Per donec faucibus nam inceptos pellentesque augue eleifend! Sed fringilla senectus congue natoque venenatis himenaeos. Porttitor proin ante gravida inceptos potenti tempus. Quam maecenas et nisi lacus odio. Justo quis ultricies faucibus integer quisque scelerisque. Nisl ultricies et a, a natoque sapien.

Natječaji